À louer - long et court terme

  • 2 month(s)
  • 403 vues

25900 - VOLLEGES Villa de Luxe 355m2

Route d'Etiez 70A, Vollèges, 1941, VS, Réf 25900, Switzerland
5'900.- par mois + Charges

Description

Chalet

A Louer à l'année: Villa contemporaine d’exception à Vollèges, proche de Verbier 

Disponible uniquement en résidence principale.

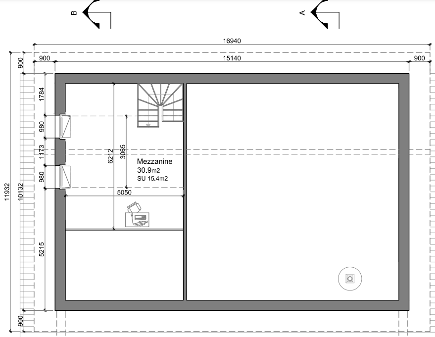
 355 m² habitables, 5 chambres, une suite parentale, un vaste séjour lumineux avec cheminée et une piscine chauffée avec cuisine extérieure.

Vue panoramique sur les Alpes, grand terrain de 1’771 m², garage double, finitions haut de gamme et conception écoresponsable (panneaux solaires, géothermie). Luxe, confort et nature réunis pour un cadre de vie unique.

Loyer : CHF 5'900.-/mois + charges

 

Nicolas Bouilliez
nicolas@abimmo.ch

Contacter

 Caractéristiques

Document

Document concernant une propriété

Open document

 Situation

  Nicolas Bouilliez

  Demande d'informations